|

一、產品[氣動線性調節球閥]的詳細資料: 產品型號:SMQ641F 產品名稱:氣動線性調節球閥 產品特點:產品概述該閥門采用V型通道球體的超短球閥與氣動執行器、閥門定位器組成,可實現微小流量的線性調節,是一種用途廣泛的新型調節閥。氣動線性調節球閥,氣動球閥,線性調節球閥。 
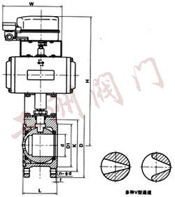
二、氣動線性調節球閥主要外形和連接尺寸單位(mm): 通徑DN | d | L | D | K | D1 | n-Φd | F | H | W | mm | in | 10 | 3/8″ | 10 | 32 | 85 | 60 | 38 | 4-M12 | 2 | 310 | 105 | 15 | 1/2″ | 14 | 35 | 90 | 65 | 46 | 4-M12 | 2 | 315 | 140 | 20 | 3/4″ | 19 | 38 | 100 | 75 | 56 | 4-M12 | 2 | 325 | 140 | 25 | 1″ | 24 | 42 | 110 | 85 | 65 | 4-M12 | 2 | 330 | 140 | 32 | 1 1/4″ | 29 | 50 | 130 | 100 | 76 | 4-M16 | 3 | 365 | 16 | 40 | 1 1/2″ | 38 | 60 | 145 | 110 | 84 | 4-M16 | 3 | 375 | 164 | 50 | 2″ | 48 | 70 | 160 | 125 | 99 | 4-M16 | 3 | 398 | 190 | 65 | 2 1/2″ | 64 | 95 | 180 | 145 | 118 | 4-M16 | 3 | 408 | 210 | 80 | 3″ | 76 | 118 | 195 | 160 | 132 | 8-M16 | 3 | 450 | 247 | 100 | 4″ | 95 | 140 | 215 | 180 | 156 | 8-M16 | 3 | 465 | 278 | 125 | 5″ | 118 | 195 | 245 | 210 | 184 | 8-M16 | 3 | 525 | 348 | 150 | 6″ | 150 | 260 | 280 | 240 | 211 | 8-M20 | 3 | 578 | 378 | 200 | 8″ | 200 | 350 | 335 | 295 | 266 | 12-M20 | 3 | 650 | 432 |
結構長度:Q/OLF002-88 法蘭標準:JB79亦可按GB9113、ANSI B16.5、B2212 訂貨須知: 一、①氣動線性調節球閥產品名稱與型號②氣動線性調節球閥口徑③氣動線性調節球閥是否帶附件二、若已經由設計單位選定公司的氣動線性調節球閥型號,請按氣動線性調節球閥型號 三、當使用的場合非常重要或環境比較復雜時,請您盡量提供設計圖紙和詳細參數,
? ? 相關產品: 氣動調節閥 ZHYO罐底調節閥 ZZYVP氮封閥 ZMAS型高壓單座角型調節閥 ZZC、ZZV型自力式壓力調節閥 Z673H型氣動漿液閥 氣動隔膜襯氟調節閥 氣動調節球閥 ZJHP精小型氣動薄膜調節閥 |
|