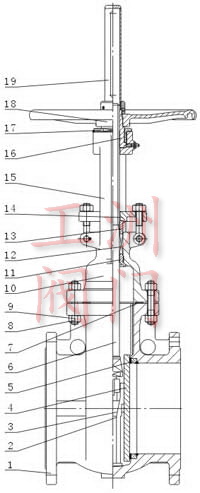
產品結構特點
自動補償平衡式雙平板閘閥是一種結構新穎的閘閥產品,它具有啟閉力矩小、速度快、振動小、使用壽命長、操作安全可靠等特點,主要用于氣、液體輸送管道的切斷或泄放。
系列平行式雙閘閥結構特點為:●閥門采用兩塊互相平行的閘板及其楔緊裝置組成的密封結構取代傳統的楔式閘閥結構。
●閥門密封機構各零件互相分離,即使在溫度變化時引起變形也仍能保證密封,且不會因高溫膨脹而使閘板擠住打不開。
●閥門密封采用耐磨、耐腐蝕材料制成,延長了閥門的使用壽命。
●在高溫、高壓情況下,進口一側閘板設計為可泄壓方式、防止由于溫度變化而引起的腔內壓力異常升高的現象,保證使用安全。
●全封閉結構,防護性能好,可全天候使用。
產品主要參數
基本型號  | (k)Z44WH(Y)、(K)Z544WH(Y)、(K)Z644WH(Y)、(K)Z744WH(Y)、(K)Z944WH(Y)  | |||
(k)Z64WH(Y)、(K)Z564WH(Y)、(K)Z664WH(Y)、(K)Z764WH(Y)、(K)Z964WH(Y)  | ||||
壓力等級范圍  | PN1.6~10.0MPa  | Class 150~600  | ||
通徑范圍  | DN150~100mm  | 2"~40"  | ||
驅動方式  | 手輪驅動  | 齒輪動、氣動、液動、電動  | ||
適用范圍  | Class 150~300(PN1.6~4.0)  | Class400(PN6.4)  | Class600  | 4"~36" (DN100~900mm)  | 
2"~6"(DN50~150mm)  | 2"~4"(DN50~100mm)  | 2"~3"(DN50~80mm)  | ||
注:本公司可根據用戶要求提供產品。
產品性能規范
壓力等級   | 常溫試驗壓力(MPa)  | 適用溫度  | 適用介質  | ||||||||
殼體體驗  | 左密封  | 右密封  | 低壓氣密封  | 普通型  | 抗硫型  | ||||||
公稱壓力(MPa)  | 1.6  | 2.4  | 1.76  | 1.76  | 0.6  | -29~121℃ 或按用戶要求  | 石油、天然氣、水等非腐蝕性介質  | 含H2S、CO2的石油、天然氣、水等腐蝕性介質 ?  | |||
2.5  | 3.75  | 2.75  | 2.75  | 0.6  | |||||||
4.0  | 6.0  | 4.4  | 4.4  | 0.6  | |||||||
6.4  | 9.6  | 7.04  | 7.04  | 0.6  | |||||||
10.0  | 15.0  | 11.0  | 11.0  | 0.6  | |||||||
磅級(Lb)  | 150  | 3.0  | 2.2  | 2.2  | 0.6  | ||||||
300  | 7.5  | 5.5  | 5.5  | 0.6  | |||||||
600  | 15.0  | 11.0  | 11.0  | 0.6  | |||||||
?
?![]()  | 產品采用標準 
 注:閥門連接法蘭尺寸可根據用戶要求設計制造。 
 注:閥門主要零部件材質可根據實際工況條件或用戶特殊要求設計選用.  | ||||||||||||||||||||||||||||||||||||||||||||||||||||||||||||||||||||||||||||||||||||||||||||||||||||||||||||||||||||||||||||||||||||||||||||||||||||||||||||||||
?![]()  | |||||||||||||||||||||||||||||||||||||||||||||||||||||||||||||||||||||||||||||||||||||||||||||||||||||||||||||||||||||||||||||||||||||||||||||||||||||||||||||||||
主要外形尺寸
型號(K)Z5(6、9)4(6)4W(F、Y、D) PN1.6、2、5MPa PN2.0MPa(Class150)
DN(mm)  | NPS(in)  | 法蘭  | 對焊  | 手動  | 齒動  | 齒動裝置  | 氣動 液動  | 電動  | 電動裝置  | ||||||||
L  | L1  | H  | H2  | D0  | B  | B1  | B0  | P  | P1  | P0  | E  | E1  | E0  | ||||
50  | 2  | 178  | 216  | 475  | 360  | 250  | -  | -  | -  | -  | -  | -  | -  | 690  | 572  | 200  | SMC-04  | 
65  | 21/2  | 190  | 241  | 535  | 425  | 300  | -  | -  | -  | -  | -  | -  | -  | 747  | 637  | 200  | SMC-04  | 
80  | 3  | 203  | 283  | 600  | 460  | 300  | -  | -  | -  | -  | 1075  | 820  | 250  | 812  | 672  | 200  | SMC-04  | 
100  | 4  | 229  | 305  | 700  | 535  | 350  | -  | -  | -  | --  | 1240  | 945  | 250  | 960  | 795  | 508  | SMC-03  | 
150  | 6  | 267  | 403  | 910  | 685  | 350  | -  | -  | -  | -  | 1400  | 1065  | 300  | 1170  | 945  | 508  | SMC-03  | 
200  | 8  | 292  | 419  | 1095  | 815  | 350  | 1235  | 900  | 310  | BA-0  | 1595  | 1210  | 300  | 1355  | 1075  | 508  | SMC-03  | 
250  | 10  | 330  | 457  | 1370  | 965  | 450  | 1510  | 1050  | 310  | BA-0  | 1800  | 1370  | 350  | 1630  | 1095  | 305  | SMC-00  | 
300  | 12  | 356  | 502  | 1470  | 1100  | 500  | 1610  | 1185  | 310  | BA-0  | 2090  | 1590  | 350  | 1730  | 1230  | 305  | SMC-00  | 
350  | 14  | 381  | 572  | 1730  | 1250  | 600  | 1890  | 1345  | 460  | BA-1  | 2420  | 1845  | 350  | 2020  | 1417  | 305  | SMC-00  | 
400  | 16  | 406  | 610  | 1870  | 1375  | 650  | 2030  | 1470  | 460  | BA-1  | 2615  | 1995  | 400  | 2160  | 1532  | 305  | SMC-00  | 
450  | 18  | 432  | 660  | 2185  | 1485  | 700  | 2415  | 1625  | 460  | BA-2  | 2895  | 2205  | 500  | 2500  | 1651  | 305  | SMC-1  | 
500  | 20  | 457  | 711  | 2335  | 1575  | 800  | 2565  | 1715  | 460  | BA-2  | 3160  | 2405  | 600  | 2650  | 1741  | 305  | SMC-1  | 
600  | 24  | 508  | 813  | 2815  | 1995  | 1000  | 3045  | 2135  | 460  | BA-2  | 3885  | 2955  | 650  | 3130  | 2161  | 457  | SMC-2  | 
700  | 28  | 610  | 914  | -  | -  | -  | -  | -  | -  | -  | 4065  | 3090  | 700  | 3630  | 2470  | 457  | SMC-2  | 
800  | 32  | 660  | 965  | -  | -  | -  | -  | -  | -  | -  | -  | -  | -  | 4135  | 2933  | 610  | SMC-3  | 
900  | 36  | 813  | 1016  | -  | -  | -  | -  | -  | -  | -  | +  | +  | +  | 4605  | 3260  | 610  | SMC-3  | 
主要外形尺寸
型號(K)Z5(6、9)4(6)4W(F、Y、D) PN4.0MPa PN5.0MPa(Class300)
DN(mm)  | NPS(in)  | 法蘭  | 對焊  | 手動  | 齒動  | 齒動裝置  | 氣動 液動  | 電動  | 電動裝置  | ||||||||
L  | L1  | H  | H2  | D0  | B  | B1  | B0  | P  | P1  | P0  | E  | E1  | E0  | ||||
50  | 2  | 216  | 216  | 475  | 360  | 250  | -  | -  | -  | -  | -  | -  | -  | 690  | 572  | 200  | SMC-04  | 
65  | 21/2  | 241  | 241  | 535  | 425  | 300  | -  | -  | -  | -  | -  | -  | -  | 747  | 637  | 200  | SMC-04  | 
80  | 3  | 283  | 283  | 600  | 460  | 300  | -  | -  | -  | -  | 1075  | 820  | 250  | 860  | 720  | 500  | SMC-03  | 
100  | 4  | 305  | 305  | 700  | 535  | 350  | -  | -  | -  | -  | 1240  | 945  | 250  | 960  | 795  | 500  | SMC-03  | 
150  | 6  | 403  | 403  | 910  | 685  | 350  | -  | -  | -  | -  | 1400  | 1065  | 300  | 1170  | 945  | 500  | SMC-03  | 
200  | 8  | 419  | 419  | 1095  | 815  | 350  | 1235  | 900  | 310  | BA-0  | 1595  | 1210  | 300  | 1355  | 945  | 305  | SMC-00  | 
250  | 10  | 457  | 457  | 1370  | 965  | 450  | 1510  | 1050  | 310  | BA-0  | 1800  | 1370  | 350  | 1630  | 1095  | 305  | SMC-00  | 
300  | 12  | 502  | 502  | 1470  | 1100  | 500  | 1610  | 1185  | 310  | BA-0  | 2090  | 1590  | 350  | 1760  | 1257  | 305  | SMC-0  | 
350  | 14  | 762  | 762  | 1730  | 1250  | 600  | 1890  | 1345  | 460  | BA-1  | 2420  | 1845  | 350  | 2020  | 1407  | 305  | SMC-0  | 
400  | 16  | 838  | 838  | 1870  | 1375  | 650  | 2030  | 1470  | 460  | BA-1  | 2615  | 1995  | 400  | 2185  | 1541  | 305  | SMC-1  | 
450  | 18  | 914  | 914  | 2185  | 1485  | 700  | 2415  | 1625  | 460  | BA-2  | 2895  | 2205  | 500  | 2500  | 1651  | 305  | SMC-1  | 
500  | 20  | 991  | 991  | 2335  | 1575  | 800  | 2565  | 1715  | 460  | BA-2  | 3160  | 2405  | 600  | 2695  | 1757  | 457  | SMC-2  | 
600  | 24  | 1143  | 1143  | 2815  | 1995  | 1000  | 3045  | 2135  | 460  | BA-2  | 3885  | 2955  | 650  | 3175  | 2177  | 457  | SMC-2  | 
700  | 28  | 1346  | 1346  | -  | -  | -  | -  | -  | -  | -  | 4065  | 3090  | 700  | 3670  | 2606  | 610  | SMC-3  | 
800  | 32  | 1524  | 1524  | -  | -  | -  | -  | -  | -  | -  | -  | -  | -  | 4136  | 2933  | 610  | SMC-3  | 
900  | 36  | 1727  | 1727  | -  | -  | -  | -  | -  | -  | -  | +  | +  | +  | 4673  | 3317  | 610  | SMC-4  | 
主要外形尺寸
型號 (K)Z5(6、9)4(6)4W(F、Y、D) PN6.4MPa
DN(mm)  | NPS(in)  | 法蘭  | 對焊  | 手動  | 齒動  | 齒動裝置  | 氣動 液動  | 電動  | 電動裝置  | ||||||||
L  | L1  | H  | H2  | D0  | B  | B1  | B0  | P  | P1  | P0  | E  | E1  | E0  | ||||
50  | 2  | 250  | 292  | 499  | 378  | 250  | -  | -  | -  | -  | -  | -  | -  | 723  | 601  | 200  | SMC-04  | 
65  | 21/2  | 280  | 330  | 562  | 446  | 300  | -  | -  | -  | -  | -  | -  | -  | 785  | 670  | 200  | SMC-04  | 
80  | 3  | 310  | 356  | 630  | 483  | 300  | -  | -  | -  | -  | 1130  | 861  | 250  | 902  | 756  | 508  | SMC-03  | 
100  | 4  | 350  | 406  | 735  | 562  | 350  | -  | -  | -  | -  | 1302  | 992  | 250  | 1007  | 838  | 508  | SMC-03  | 
150  | 6  | 450  | 495  | 956  | 720  | 350  | 1096  | 805  | 305  | BA-0  | 1470  | 1118  | 300  | 1216  | 848  | 305  | SMC-00  | 
200  | 8  | 550  | 597  | 1150  | 856  | 400  | 1290  | 941  | 305  | BA-0  | 1675  | 1271  | 300  | 1440  | 1013  | 305  | SMC-0  | 
250  | 10  | 650  | 673  | 1439  | 1013  | 500  | 1580  | 1098  | 305  | BA-0  | 1890  | 1440  | 350  | 1728  | 1170  | 305  | SMC-0  | 
300  | 12  | 750  | 762  | 1545  | 1155  | 600  | 1705  | 1250  | 458  | BA-1  | 2195  | 1670  | 350  | 1833  | 1312  | 305  | SMC-0  | 
350  | 14  | 850  | 826  | 1817  | 1313  | 650  | 1977  | 1408  | 458  | BA-1  | 2542  | 1937  | 350  | 2131  | 1480  | 305  | SMC-1  | 
400  | 16  | 950  | 902  | 1965  | 1445  | 700  | 2125  | 1540  | 458  | BA-1  | 2746  | 2095  | 400  | 2278  | 1610  | 305  | SMC-1  | 
450  | 18  | 1050  | 978  | 2295  | 1560  | 800  | 2525  | 1700  | 458  | BA-2  | 3040  | 2315  | 500  | 2655  | 1741  | 457  | SMC-2  | 
500  | 20  | 1150  | 1054  | 2452  | 1655  | 1000  | 2682  | 1795  | 458  | BA-2  | 3318  | 2525  | 600  | 2812  | 1836  | 610  | SMC-3  | 
600  | 24  | 1350  | 1232  | -  | -  | -  | 3186  | 2235  | 458  | BA-2  | 4080  | 3103  | 650  | 3356  | 2413  | 610  | SMC-3  | 
700  | 28  | 1450  | 1397  | -  | -  | -  | -  | -  | -  | -  | 4268  | 3245  | 700  | 3902  | 2777  | 610  | SMC-4  | 
800  | 32  | 1650  | 1651  | -  | -  | -  | -  | -  | -  | -  | -  | -  | -  | 4393  | 3121  | 610  | SMC-4  | 
900  | 36  | 1880  | 1880  | -  | -  | -  | -  | -  | -  | -  | -  | -  | -  | 4863  | 3428  | 760  | SMC-5  | 
主要外形尺寸
型號 (K)Z5(6、9)4(6)4W(F、Y、D) Class400
DN(mm)  | NPS(in)  | 法蘭  | 對焊  | 手動  | 齒動  | 齒動裝置  | 氣動 液動  | 電動  | 電動裝置  | ||||||||
L  | L1  | H  | H2  | D0  | B  | B1  | B0  | P  | P1  | P0  | E  | E1  | E0  | ||||
50  | 2  | 292  | 292  | 499  | 378  | 250  | -  | -  | -  | -  | -  | -  | -  | 723  | 601  | 200  | SMC-04  | 
65  | 21/2  | 330  | 330  | 562  | 446  | 300  | -  | -  | -  | -  | -  | -  | -  | 785  | 670  | 200  | SMC-04  | 
80  | 3  | 356  | 356  | 630  | 483  | 300  | -  | -  | -  | -  | 1130  | 861  | 250  | 902  | 756  | 508  | SMC-03  | 
100  | 4  | 406  | 406  | 735  | 562  | 350  | -  | -  | -  | -  | 1302  | 992  | 250  | 1007  | 838  | 508  | SMC-03  | 
150  | 6  | 495  | 495  | 956  | 720  | 350  | 1096  | 805  | 305  | BA-0  | 1470  | 1118  | 300  | 1216  | 848  | 305  | SMC-00  | 
200  | 8  | 597  | 597  | 1150  | 856  | 400  | 1290  | 941  | 305  | BA-0  | 1675  | 1271  | 300  | 1440  | 1013  | 305  | SMC-0  | 
250  | 10  | 673  | 673  | 1439  | 1013  | 500  | 1580  | 1098  | 305  | BA-0  | 1890  | 1440  | 350  | 1728  | 1170  | 305  | SMC-0  | 
300  | 12  | 762  | 762  | 1545  | 1155  | 600  | 1705  | 1250  | 458  | BA-1  | 2195  | 1670  | 350  | 1833  | 1312  | 305  | SMC-0  | 
350  | 14  | 826  | 826  | 1817  | 1313  | 650  | 1977  | 1408  | 458  | BA-1  | 2542  | 1937  | 350  | 2131  | 1480  | 305  | SMC-1  | 
400  | 16  | 902  | 902  | 1965  | 1445  | 700  | 2125  | 1540  | 458  | BA-1  | 2746  | 2095  | 400  | 2278  | 1610  | 305  | SMC-1  | 
450  | 18  | 978  | 978  | 2295  | 1560  | 800  | 2525  | 1700  | 458  | BA-2  | 3040  | 2315  | 500  | 2655  | 1741  | 457  | SMC-2  | 
500  | 20  | 1054  | 1054  | 2452  | 1655  | 1000  | 2682  | 1795  | 458  | BA-2  | 3318  | 2525  | 600  | 2812  | 1836  | 610  | SMC-3  | 
600  | 24  | 1232  | 1232  | -  | -  | -  | 3186  | 2235  | 458  | BA-2  | 4080  | 3103  | 650  | 3356  | 2413  | 610  | SMC-3  | 
700  | 28  | 1397  | 1397  | -  | -  | -  | -  | -  | -  | -  | 4268  | 3245  | 700  | 3902  | 2777  | 610  | SMC-4  | 
800  | 32  | 1650  | 1650  | -  | -  | -  | -  | -  | -  | -  | -  | -  | -  | 4393  | 3121  | 610  | SMC-4  | 
900  | 36  | 1880  | 1880  | -  | -  | -  | -  | -  | -  | -  | -  | -  | -  | 4863  | 3428  | 760  | SMC-5  | 
主要外形尺寸
型號 (K)Z5(6、9)4(6)4W(F、Y、D) PN10.0MPa(Class600)
DN(mm)  | NPS(in)  | 法蘭  | 對焊  | 手動  | 齒動  | 齒動裝置  | 氣動 液動  | 電動  | 電動裝置  | ||||||||
L  | L1  | H  | H2  | D0  | B  | B1  | B0  | P  | P1  | P0  | E  | E1  | E0  | ||||
| 50 | 2 | 292 | 292 | 499 | 378 | 300 | - | - | - | - | - | - | - | 723 | 600 | 200 | SMC-04 | 
| 65 | 21/2  | 330 | 330 | 562 | 446 | 350 | - | - | - | - | - | - | - | 785 | 705 | 508 | SMC-03 | 
| 80 | 3 | 356 | 356 | 630 | 483 | 350 | - | - | - | - | 1130 | 861 | 250 | 890 | 742 | 508 | SMC-03 | 
| 100 | 4 | 432 | 432 | 735 | 562 | 400 | - | - | - | - | 1302 | 992 | 250 | 995 | 690 | 305 | SMC-00 | 
| 150 | 6 | 559 | 559 | 956 | 720 | 500 | 1096 | 805 | 305 | BA-0 | 1470 | 1118 | 300 | 1245 | 876 | 305 | SMC-0 | 
| 200 | 8 | 660 | 660 | 1150 | 856 | 600 | 1290 | 941 | 305 | BA-0 | 1675 | 1271 | 300 | 1440 | 1013 | 305 | SMC-0 | 
| 250 | 10 | 787 | 787 | 1439 | 1013 | 650 | 1580 | 1098 | 458 | BA-1 | 1890 | 1440 | 350 | 1753 | 1199 | 305 | SMC-1 | 
| 300 | 12 | 838 | 838 | 1545 | 1155 | 700 | 1705 | 1250 | 458 | BA-1 | 2195 | 1670 | 350 | 1858 | 1321 | 305 | SMC-1 | 
| 350 | 14 | 889 | 889 | 1817 | 1313 | 800 | 1977 | 1408 | 458 | BA-1 | 2542 | 1937 | 350 | 2177 | 1495 | 457 | SMC-2 | 
| 400 | 16 | 991 | 991 | 1965 | 1445 | 1000 | 2125 | 1540 | 458 | BA-2 | 2746 | 2095 | 400 | 2365 | 1762 | 610 | SMC-3 | 
| 450 | 18 | 1092 | 1092 | - | - | - | 2525 | 1700 | 458 | BA-2 | 3040 | 2315 | 500 | 2695 | 1877 | 610 | SMC-3 | 
| 500 | 20 | 1194 | 1194 | - | - | - | 2682 | 1795 | 458 | BA-2 | 3318 | 2525 | 600 | 2922 | 2030 | 610 | SMC-4 | 
| 600 | 24 | 1397 | 1397 | - | - | - | - | - | - | - | 4080 | 3103 | 650 | 3426 | 2470 | 610 | SMC-4 | 
| 700 | 28 | 1549 | 1549 | - | - | - | - | - | - | - | 4268 | 3245 | 700 | 3983 | 2835 | 760 | SMC-5 | 
| 800 | 32 | 1778 | 1778 | - | - | - | - | - | - | - | - | - | - | 4485 | 3186 | 760 | SMC-5 |