|

一、產品[無壓差電磁閥]的詳細資料: 產品型號:ZCT 產品名稱:無壓差電磁閥 產品特點:本閥選用于以水或液體為工作介質,可自動控制或遠程控制水、油、液體等工作介質管路的通斷。由于本閥采用橡膠密封,故對工作介質的清潔度大大減低,具有啟閉迅速,可靠性高等優點。無壓差電磁閥價格,無壓差電磁閥廠家,無壓差電磁閥報價。 二、型號規格說明: 
三、原理: 本閥為二次開閥的先導式電磁閥,其結構主要由導閥和主閥組成,主閥采用橡膠密封結構。 常位時,活動鐵芯封住導閥口,閥腔內壓力平衡,主閥口封閉。當線圈通電時,產生電磁力將活動鐵芯吸上,主閥腔內的介質自導閥口外泄,以至產生壓力差,膜片或閥杯被迅速托起,主閥口開啟,閥便呈通路了。當線圈斷電,磁場消失,活動鐵芯復位,封閉導閥口,導閥和主閥腔內壓力平衡后,閥又呈關閉狀態。 四、技術參數: 工作介質 | 水、粘度≤4°E油及其它非腐蝕性液體 | 介質溫度°C | ≤60 | 公稱壓力(Mpa) | 1.0 | 工作壓差(Mpa) | 0.05~1.0 | 0.1~1.0 | 0.15~1.0 | 電源電壓 | AC200V,其余規格可作特殊訂貨(36V、12V、24V) | 流量系數(Kv) | 按JB/T7352-94規定 | 泄漏量(ml/min) | 按JB/T7352-94.F規定 | 公稱通徑(mm) | 10 | 15 | 20 | 25 | 32 | 40 | 50 | 65 | 80 | 100 | 125 | 150 | 200 | 250 | 300 | 功耗(VA) | 17 | 30 |

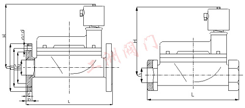
五、ZCS水用電磁閥安裝尺寸: 公稱通徑 DN | 內螺紋連接 | - | 法蘭連接 | 外形尺寸 | 內螺紋 | 外形尺寸 | 法蘭尺寸 | H | L | G | H | L | D | D1 | D2 | b | f | n-d | 15 | 112 | 80 | 1/2 | - | - | - | - | - | - | - | - | 20 | 119 | 80 | 3/4 | - | - | - | - | - | - | - | - | 25 | 130 | 90 | 1 | 130 | 60 | 115 | 85 | 65 | 16 | 3 | 4-Φ14 | 32 | 137 | 140 | 11/4 | 137 | 180 | 140 | 100 | 76 | 18 | 3 | 4-Φ18 | 40 | 152 | 156 | 11/2 | 152 | 200 | 150 | 110 | 84 | 18 | 3 | 4-Φ18 | 50 | 164 | 180 | 2 | 164 | 230 | 165 | 125 | 99 | 20 | 3 | 4-Φ18 | 65 | - | - | - | 222 | 290 | 185 | 145 | 118 | 20 | 3 | 4-Φ18 | 80 | - | - | - | 253 | 310 | 200 | 160 | 132 | 22 | 3 | 8-Φ18 | 100 | - | - | - | 260 | 350 | 220 | 180 | 156 | 24 | 3 | 8-Φ18 | 125 | - | - | - | 315 | 400 | 250 | 210 | 184 | 26 | 3 | 8-Φ18 | 150 | - | - | - | 350 | 480 | 285 | 240 | 211 | 26 | 3 | 8-Φ22 | 200 | - | - | - | 390 | 600 | 340 | 295 | 266 | 26 | 3 | 8-Φ22 | 250 | - | - | - | 430 | 730 | 395 | 350 | 319 | 28 | 3 | 12-Φ22 | 300 | - | - | - | 480 | 850 | 445 | 400 | 370 | 28 | 4 | 12-Φ22 |
訂貨須知: 一、①ZCS水用電磁閥產品名稱與型號②ZCS水用電磁閥口徑③ZCS水用電磁閥是否帶附件二、若已經由設計單位選定公司的ZCS水用電磁閥型號,請按ZCS水用電磁閥型號 三、當使用的場合非常重要或環境比較復雜時,請您盡量提供設計圖紙和詳細參數,
? ? 相關產品: ZCM煤氣電磁閥 潛水閥 ZCS法蘭電磁閥 SLPM磁保持脈沖電磁閥 SZCZP耐磨電磁閥 ZQDF蒸汽電磁閥 ZBF22Q自保持電磁球閥 2W系列電磁閥 ZCR燃氣切斷閥 DMF-Z電磁隔膜閥 蒸汽電磁閥 |
|