|

一、產品[球閥]的詳細資料: 產品型號:Q41F 產品名稱:天燃氣球閥 二、產品特點: ??? 天燃氣球閥采用成形聚四氟乙烯填料,適用于大多數高中壓燃氣輸送場合,手柄操作力矩平穩,O形密封圈用來防止外部雜質進入閥門內部。并保持閥門長期密封性能,大于DN150的球閥采用蝸輪驅動。球閥價格,球閥報價,球閥廠家。 
三、主要設計參數: 設計、制造:GB/T12237-89 法蘭連接:JB/T79-94、GB9113-2000 結構長度:GB12221-89 公稱通徑:DN15~DN150mm 公稱壓力:PN1.6、2.5、4.0MP。 四、主要性能參數: 公稱壓力 | 殼體試驗 | 密封試驗 | 適用介質 | 適宜溫度 | 1.6 | 2.4 | 1.76 | 液化氣、天然氣等 | -40~+80℃ | 2.5 | 3.75 | 2.75 | 4.0 | 6.0 | 4.4 |
? 五、主要零件材料: 閥體、閥蓋 | 閥桿、球體 | 密封面 | 填料 | WCB/不銹鋼 | 不銹鋼 | 不銹鋼和聚四氟乙烯 | 聚四氟乙烯 |
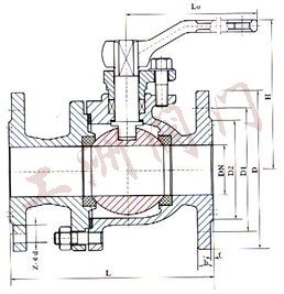
六、天燃氣球閥主要外形尺寸: 公稱通徑、 DN(mm) | Q41F-25型主要連接尺寸和外形尺寸(mm) | 重量 (kg) | L | D | D1 | D2 | Z-фd | H | b | f | Do | 15 | 130 | 95 | 65 | 45 | 4-14 | 103 | 16 | 2 | 100 | 3 | 20 | 140 | 105 | 75 | 55 | 4-14 | 112 | 16 | 2 | 160 | 4 | 25 | 150 | 115 | 85 | 65 | 4-14 | 123 | 16 | 2 | 160 | 5 | 32 | 165 | 135 | 100 | 78 | 4-18 | 150 | 18 | 3 | 250 | 8 | 40 | 180 | 145 | 110 | 85 | 4-18 | 156 | 18 | 3 | 250 | 11 | 50 | 200 | 160 | 125 | 100 | 4-18 | 172 | 20 | 3 | 350 | 14 | 65 | 220 | 180 | 145 | 120 | 8-18 | 197 | 22 | 3 | 350 | 20 | 80 | 250 | 195 | 160 | 135 | 8-18 | 222 | 22 | 3 | 450 | 28 | 100 | 320 | 230 | 190 | 160 | 8-23 | 253 | 24 | 4 | 450 | 36 | 125 | 400 | 270 | 220 | 188 | 8-25 | 286 | 28 | 4 | 600 | 62 | 150 | 400 | 300 | 250 | 218 | 8-25 | 275 | 30 | 4 | 800 | 80 |
注:不銹鋼球閥尚有生產,Q41F-16(25/40)P DN15~150mm,尺寸同上表。 ? 訂貨須知: 1.產品型號與名稱 2.公稱通徑DN 3.額定流量系數KV 4.公稱壓力和壓差 5.閥體和閥內組件材料 6.流量特性 7.適用溫度 8.電源電壓和控制信號 9.是否帶附件 ? 相關產品: 氣源球閥 Q21F廣式球閥 高壓鍛打小型球閥 高壓內螺紋球閥 不銹鋼三通球閥 三鍛式承插焊接球閥 |
|