|

一、產品[球閥(球型閘閥)]的詳細資料: 產品名稱:保溫球閥(球型閘閥) 產品特點:一體式法蘭高溫球閥,一體式法蘭替閘閥,高溫球閥,替閘閥 
二、性能規范: 型號 | 公稱壓力(MPa) | 試驗壓力Ps(MPa) | 工作溫度(℃) | 適用介質 | | - | - | - | PF.QZ41M-10 | 1.0 | 1.5 | 1.1 | 0.6 | 300 | 蒸氣、水、油等 | PF.QZ41M-16 | 1.6 | 2.4 | 1.8 | PF.QZ41M-25Q | 2.5 | 4.0 | 2.8 | 350 |
三、主要零件材料: 零件名稱 | 材料 | PF.QZ41M-10 16 | PF.QZ41M-25Q | 閥體 | HT200 | QT450-10 | 球體 | 不銹鋼 | 閥桿 | 45# | 手柄 | Q235 | 密封圈 | 復合石墨 |
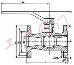
四、球型閘閥外形尺寸和連接尺寸: 型號 | 公稱通徑 | 尺寸(mm) | L | D | D1 | D2 | b-f | z-Φd | H | Do | PF.QZ41M-10 | 40 | 165 | 145 | 110 | 85 | 18-3 | 4-18 | 155 | 250 | 50 | 178 | 160 | 125 | 100 | 20-3 | 4-18 | 175 | 300 | 65 | 190 | 180 | 145 | 120 | 20-3 | 4-18 | 195 | 300 | 80 | 203 | 195 | 160 | 135 | 22-3 | 8-18 | 225 | 320 | 100 | 229 | 215 | 180 | 151 | 22-3 | 8-18 | 250 | 320 | 125 | 254 | 245 | 210 | 185 | 24-3 | 8-18 | 270 | 360 | 150 | 267 | 280 | 240 | 215 | 24-3 | 8-18 | 290 | 360 | 200 | 292 | 335 | 295 | 265 | 26-3 | 8-23 | 320 | 450 | 250 | 330 | 390 | 350 | 320 | 28-3 | 8-23 | 405 | 450 | 300 | 356 | 440 | 400 | 368 | 28-4 | 12-23 | 560 | 1000 | 350 | 381 | 500 | 460 | 428 | 30-4 | 16-23 | 620 | 1000 | PF.QZ41M-16 (PF.QZ41M-25Q) | 40 | 232 | 145 | 110 | 85 | 20-3 | 4-18 | 155 | 250 | 50 | 250 | 160 | 125 | 100 | 20-3 | 4-18 | 175 | 300 | 65 | 270 | 180 | 145 | 120 | 20-3 | 4-18 | 195 | 300 | 80 | 280 | 195 | 160 | 135 | 22-3 | 8-18 | 225 | 320 | 100 | 300 | 215 | 180 | 155 | 24-3 | 8-18 | 250 | 320 | 125 | 325 | 245 | 210 | 185 | 26-3 | 8-18 | 270 | 360 | 150 | 350 | 280 | 240 | 210 | 28-3 | 8-233 | 290 | 360 | 200 | 400 | 335 | 295 | 265 | 30-3 | 12-23 | 320 | 450 | 250 | 450 | 405 | 335 | 320 | 32-3 | 12-25 | 405 | 450 | 300 | 500 | 460 | 410 | 375 | 34-4 | 12-25 | 560 | 1000 | 350 | 550 | 520 | 470 | 435 | 38-4 | 16-25 | 620 | 1000 |
訂貨須知: 一、①球型閘閥產品名稱與型號②球型閘閥口徑③球型閘閥是否帶附件二、若已經由設計單位選定公司的球型閘閥型號,請按球型閘閥型號 三、當使用的場合非常重要或環境比較復雜時,請您盡量提供設計圖紙和詳細參數,
? ? 相關產品: 電動刀型閘閥 ZT9928手動漿料閘閥 螺旋閘閥 國際法蘭閘閥 國際法蘭電動閘閥 國際低溫法蘭閘閥 平板閘閥 不銹鋼閘閥 彈性軟密封閘閥 暗桿彈性座封閘閥 有導流孔平板閘閥 電動彈性座封閘閥 彈性座封閘閥 消防專用信號彈性座封閘閥 |
|