| 
 
 
 一、產品[隔膜閥]的詳細資料: 產品型號:EG41W 產品名稱:無襯里隔膜閥 產品特點:設計與制造:BS5156 結構長度:5156 法蘭連接尺寸:BS4504、DIN2532、JIS B2212、ANSI B16.1、ISO2004 EG41W無襯里隔膜閥,EG41J襯膠堰式隔膜閥,堰式隔膜閥  
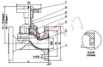
 部件列表:1.閥體 2.閥體襯里 3.隔膜 4.閥瓣 5.閥桿 6.閥蓋 7.手輪 二、用途: ??? 本閥專用于控制非腐蝕性或一般腐蝕性介質,閥體內腔表面無襯里或覆有可供選擇的各種橡膠、適用于不同工作溫度和液體管路。 適用溫度:≤85℃、≤100℃、≤120℃、≤150℃ 壓力等級:PN(MPa) 0.6 1.0 1.6  三、材料: 閥體:鑄鐵、球墨鑄鐵、碳鋼、不銹鋼  閥蓋:鑄鐵、球墨鑄鐵、碳鋼、不銹鋼  襯里:無襯里、橡膠  隔膜:橡膠  閥瓣:鑄鐵  閥桿:碳鋼、不銹鋼  手輪:鑄鐵  四、測試: 襯里層:電火花檢測  試驗與檢驗按BS6755標準  公稱壓力:PN(MPa) 閥體:PN×1.5 密封:PN×1.1 五、結構特點: 隔膜閥是一種特殊形式的截斷閥: 1、彈性密封的開閉件,確保沒有內漏; 2、流線型的流道,使得壓力損失小; 3、沒有填料函,因此沒有外漏; 4、閥體與蓋被中間隔膜隔開,使得隔膜上方的閥蓋,閥桿等零件不受介質侵蝕; 5、隔膜可更換,維護費用低;  6、襯里材料的多樣性,可適用于各種介質,并具有強度高、耐腐蝕性能好的特點。 六、EG41W無襯里隔膜閥主要連接尺寸: 公稱通徑  DN  | 公稱壓力  MPa  | 工作壓力  MPa  | L mm  | D mm  | D1 mm  | n-Фd mm  | f mm  | H1 mm  | H2 mm  | D0 mm  | 質量  Kg/kilos  |  15  | 1.6  | 1.6  | 108  | 95  | 65  | 4-14  | 2  | 90  | 99  | 66  | 2  |  20  | 117  | 105  | 75  | 4-14  | 2  | 93  | 103  | 66  | 3  |  25  | 127  | 115  | 85  | 4-14  | 2   | 100  | 112  | 66  | 4  |  32  | 146  | 140  | 100  | 4-18  | 2   | 127  | 144  | 96  | 6.5  |  40  | 159  | 150  | 110  | 4-18  | 2   | 136  | 56  | 96  | 7.5  |  50  | 190  | 165  | 125  | 4-18  | 2   | 151  | 177  | 96  | 10  |  65  | 1.0  | 1.0  | 216  | 185  | 145  | 4-18  | 2   | 183  | 213  | 165  | 16  |  80  | 254  | 200  | 160  | 8-18  | 2   | 190  | 230  | 230  | 23.5  |  100  | 305  | 220  | 180  | 8-18  | 2  | 242  | 285  | 280  | 34  |  125  | 356  | 250  | 210  | 8-18  | 3  | 285  | 648  | 280  | 44  |  150  | 406  | 285  | 240  | 8-22  | 3  | 353  | 431  | 368  | 67.5  |  200  | 0.6  | 521  | 340  | 295  | 8-22  | 3  | 445  | 537  | 483  | 141.5  |  250  | 635  | 395  | 350  | 12-22  | 5  | 598  | 734  | 500  | 229  |  300  | 0.4  | 749  | 445  | 400  | 12-22  | 5  | 698  | 778  | 560  | 321  |  350  | 787  | 505  | 460  | 16-22  | 5  | 723  | 883  | 560  | 360  |  400  | 0.25  | 914  | 565  | 515  | 16-26  | 5  | 868  | 1078  | 640  | 584  |  
 訂貨須知: 一、①EG41W無襯里隔膜閥產品名稱與型號②EG41W無襯里隔膜閥口徑③EG41W無襯里隔膜閥是否帶附件二、若已經由設計單位選定公司的EG41W無襯里隔膜閥型號,請按EG41W無襯里隔膜閥型號 三、當使用的場合非常重要或環境比較復雜時,請您盡量提供設計圖紙和詳細參數,
  ? 相關產品: 襯膠直流式隔膜閥 衛生級不銹鋼隔膜閥 G6B41J-10型常閉式氣動隔膜閥 G6B41J-10型常開氣動隔膜閥 EG41型英標隔膜閥 英標氣動常閉隔膜閥 英標氣動隔膜閥 襯膠堰式隔膜閥 氣動隔膜閥 英標氣動常開型隔膜閥 電動襯氟隔膜閥 不銹鋼襯膠隔膜閥 G49J三通隔膜閥 GM高真空隔膜閥  |  
  |