| 
 
 
 一、產品[襯膠堰式隔膜閥]的詳細資料: 產品型號:G41J 產品名稱:襯膠堰式隔膜閥 產品特點:G41W無襯里隔膜閥,G41J襯膠堰式隔膜閥,隔膜閥設計與制造:GB122239 結構長度:GB12221、JB1688 法蘭連接尺寸:GB4216、JB78  
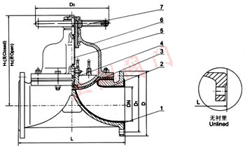
 部件列表:1、閥體 2、閥體襯里  3、隔膜 4、閥瓣? 5、閥桿 6、閥蓋 7、手輪 二、用途: 用途:本閥專用于控制非腐蝕性或一般腐蝕性介質,閥體內腔表面無襯里或覆有可供選擇的各種橡膠,適用于不同工作溫度和流體管路。 適用溫度:≤85℃、≤100℃、 ≤120℃、≤150℃(按照襯里和隔膜材料) 壓力等級:PN0.6、1.0、1.6 三、材料: 閥體:鑄鐵、球墨鑄鐵、碳鋼、不銹鋼 閥蓋:鑄鐵、球墨鑄鐵、碳鋼、不銹鋼 襯里:無襯里、橡膠 隔膜:橡膠 閥瓣:鑄鐵 閥桿:碳鋼、不銹鋼 手輪:鑄鐵 四、測試: 襯里層:電火花檢測 試驗與檢驗按GB/T13297標準 公稱壓力:PN(Mpa) 閥體:PN×1.5 密封:PN×1.1 五、特點: 結構特點:隔膜閥是一種特殊形式的截斷閥; 1、彈性密封的開閉件,確保沒有內漏; 2、流線型的流道,使得壓力損失?。?br/>3、沒有填料函,因此沒有外漏; 4、閥體與蓋被中間隔膜隔開,使得隔膜上方的閥蓋,閥桿等零件不受介質侵蝕; 5、隔膜可更換,維護費用低; 6、襯里材料的多樣性,可適用于各種介質,并具有良好的耐腐蝕性。 六、G41J襯膠堰式隔膜閥主要尺寸及重量: 公稱通徑 DN  | 公稱壓力 Mpa  | 工作壓力 Mpa  | L (mm)   | D (mm)   | D1 (mm)   | n-φd (mm)   | F (mm)   | H1 (mm)   | H2 (mm)   | D0 (mm)   | 質量   |  15  | 1.5  | 1.0  | 125  | 95  | 65  | 4-14  | 2  | 105  | 116  | 120  | 4.5  |  20  | 135  | 105  | 75  | 4-14  | 2  | 117  | 128  | 120  | 4.5  |  25  | 145  | 115  | 85  | 4-14  | 2  | 121  | 135  | 120  | 5  |  32  | 160  | 140  | 100  | 4-18  | 2  | 132  | 150  | 120  | 7  |  40  | 180  | 150  | 110  | 4-18  | 3  | 156  | 176  | 140  | 9  |  50  | 210  | 165  | 125  | 4-18  | 3  | 169  | 195  | 140  | 12.5  |  65  | 250  | 185  | 145  | 4-18  | 3  | 200  | 236  | 200  | 19  |  80  | 300  | 200  | 160  | 4-18  | 3  | 216  | 256  | 200  | 25.5  |  100  | 350  | 220  | 180  | 8-18  | 3  | 270  | 322  | 280  | 40  |  125  | 400  | 250  | 210  | 8-18  | 3  | 315  | 380  | 320  | 62  |  150  | 460  | 285  | 240  | 8-22  | 3  | 378  | 458  | 320  | 80.5  |  200  | 0.6  | 0.4  | 570  | 340  | 295  | 8-22  | 4  | 518  | 638  | 400  | 146  |  250  | 680  | 395  | 350  | 12-22  | 4  | 583  | 720  | 500  | 240  |  300  | 790  | 445  | 400  | 12-22  | 4  | 698  | 778  | 500  | 334  |  350  | 900  | 505  | 460  | 16-22  | 4  | 723  | 883  | 500  | 371  |  400  | 0.25  | 1000  | 565  | 515  | 16-26  | 4  | 868  | 1078  | 640  | 584  |  
 訂貨須知: 一、①G41J襯膠堰式隔膜閥產品名稱與型號②G41J襯膠堰式隔膜閥口徑③G41J襯膠堰式隔膜閥是否帶附件二、若已經由設計單位選定公司的G41J襯膠堰式隔膜閥型號,請按G41J襯膠堰式隔膜閥型號 三、當使用的場合非常重要或環境比較復雜時,請您盡量提供設計圖紙和詳細參數,
  ? 相關產品: 隔膜閥 直通式隔膜閥 衛生級隔膜閥 內螺紋隔膜閥 氣動襯里隔膜閥 電動襯氟隔膜閥 不銹鋼襯膠隔膜閥 G49J三通隔膜閥 GM高真空隔膜閥 藥用衛生級隔膜閥 EG41W無襯里隔膜閥 EG6K41J常開氣動隔膜閥 EG641J襯膠氣動隔膜閥 無帶手操往復型氣動隔膜閥 EG41型英標隔膜閥 英標氣動常閉隔膜閥 英標氣動隔膜閥 英標氣動常開型隔膜閥 襯膠直流式隔膜閥 衛生級不銹鋼隔膜閥 G6B41J-10型常閉式氣動隔膜閥 G6B41J-10型常開氣動隔膜閥  |  
  |